|
Vendida
Tipo de Propiedad: Casa
Villa Turabo, Caguas 📍 Precio de Venta: $119,900
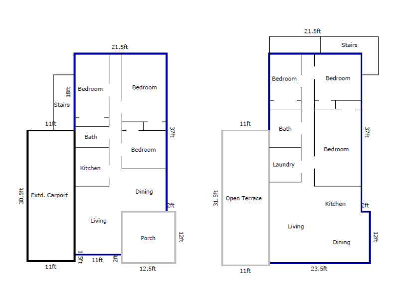
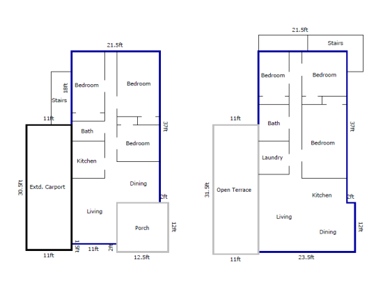
Propiedad multi familiar de 2 unidades. El primer nivel cuenta con 3 habitaciones, 1 baño, sala, cocina, comedor, laundry y marquesina sencilla. El segundo nivel cuenta con 3 habitaciones, 1 baño, sala, cocina, comedor, laundry y terraza abierta!! Ambas unidades con contador de agua y luz independiente!!!
¡Haga su cita hoy! ✅
¡SOMOS SU ALTERNATIVA SEGURA! | Lic. E-147
|
Vendida
|
|
CONTACTE A: Best Properties Realty Group
|
Formulario de Contacto
|













